Kos Bina Rumah atas Tanah Sendiri – Dalam dunia yang sentiasa berubah ini, impian memiliki kos bina rumah atas tanah sendiri bukanlah lagi satu perkara yang mustahil.
Semakin ramai individu di Malaysia sedang mempertimbangkan untuk mewujudkan tempat tinggal impian mereka dengan memilih untuk membinanya tanpa perlu melibatkan pihak ketiga.
Dalam blog post Kos Bina Rumah atas Tanah Sendiri ini, kita akan membincangkan mengenai kelebihan, cabaran, dan langkah-langkah penting yang perlu diambil bagi mereka yang ingin melaksanakan projek kos bina rumah atas tanah sendiri.
Teruskan membaca untuk mendapatkan panduan terperinci yang akan membantu anda menjalani perjalanan mengubah impian menjadi kenyataan.
Cara Cagar Tanah Untuk Bina Rumah Sendiri

Individu yang memiliki tanah kini diberi peluang untuk menjadikan tanah mereka sebagai jaminan bagi tujuan mendapatkan pembiayaan untuk membina rumah.
Proses pengajuan cagaran tanah ini boleh dilakukan melalui pelbagai institusi perbankan yang ada.
Permohonan untuk menjadikan tanah sebagai cagaran ini boleh diajukan jika pemilik tanah memenuhi segala syarat yang telah ditetapkan untuk cagaran tanah.
Sebagai langkah selanjutnya, tanah yang dijadikan jaminan akan dinilai oleh penilai dari Jabatan Penilaian dan Perkhidmatan Harta. Nilai tanah yang dijadikan cagaran mestilah melebihi jumlah pinjaman yang dimohon daripada bank.
Masa jaminan terhadap tanah tersebut juga tidak boleh melebihi tempoh 40 tahun.
Sebelum pemilik tanah dapat menjadikan tanah mereka sebagai cagaran di institusi perbankan, kebenaran perlu diperoleh daripada Pihak Berkuasa Negeri.
Permohonan untuk cagaran tanah ini boleh dikemukakan di mana-mana institusi bank dengan mematuhi syarat-syarat cagaran tanah yang telah ditetapkan oleh pihak bank.
Pemilik tanah yang layak perlu mengunjungi cawangan bank yang berdekatan untuk membuat permohonan. Mereka juga perlu membawa bersama geran tanah dan dokumen-dokumen yang berkaitan.
Pinjaman akan diluluskan oleh bank jika tanah tersebut diterima sebagai jaminan yang sesuai.
Permohonan Pindah Milik Dengan Pejabat Tanah Guna Borang 14A
Permohonan berkaitan pemilikan dan pemindahan hak milik tanah boleh ditempuh melalui Pejabat Tanah.
Tujuan utama permohonan ini adalah untuk memastikan bahawa proses pembinaan rumah dilakukan oleh tuan tanah yang juga merupakan pemilik rumah tersebut.
Satu lagi aspek penting ialah geran tanah perlu didaftarkan atas nama pemilik rumah. Tindakan ini akan memudahkan proses pembinaan rumah di atas tanah milik sendiri.
Bagi individu yang memiliki geran tanah yang masih teregistrasi atas nama orang lain, langkah pertama adalah pemindahan hak milik yang perlu diuruskan melalui Pejabat Tanah.
Prosedur permohonan ini dapat dilakukan dengan menghadiri Pejabat Tanah Negeri yang bersangkutan. Di sana, proses pemindahan hak milik dan pemecahan bahagian tanah dapat diperoleh.
Dalam konteks ini, semua individu yang terlibat perlu hadir sendiri dalam proses ini untuk memudahkan pembinaan rumah berjalan lancar.
Sesungguhnya, proses ini akan memerlukan persetujuan dari semua pihak yang terlibat dalam transaksi ini. Beberapa jenis borang seperti Borang 14A atau 9B perlu diisi sebagai sebahagian daripada proses ini, dan bayaran yang berkenaan akan dikenakan sebagai yuran transaksi.
Setelah selesai dengan permohonan di Pejabat Tanah, barulah pemilik tanah dapat memulakan langkah-langkah pembinaan rumah yang diimpikan.
Faktor Utama yang Mempengaruhi Jumlah Kos Bina Rumah
Terdapat beberapa faktor kritikal yang mempengaruhi jumlah perbelanjaan keseluruhan dalam projek pembinaan rumah. Memahami dengan baik faktor-faktor ini dapat membantu anda merancang anggaran kos dengan lebih berkesan.
1. Keluasan Tanah
Saiz atau keluasan tanah adalah faktor penting dalam menentukan kos pembinaan. Tanah yang lebih besar memerlukan lebih banyak bahan binaan dan masa kerja pembinaan yang lebih lama.
Kos utiliti seperti elektrik dan air juga akan meningkat dengan keluasan tanah yang lebih besar.
Sebagai panduan, keluasan minimum untuk rumah teres atau berkembar adalah 1,000 kaki persegi, sementara untuk rumah banglo adalah 2,000 kaki persegi.
Semakin besar keluasan tanah, semakin tinggi kos yang perlu diperuntukkan.
2. Lokasi Tanah
Lokasi tanah adalah faktor kedua yang sangat mempengaruhi kos keseluruhan.
Biasanya, harga tanah dan kos bahan binaan di kawasan utama seperti Lembah Klang, Pulau Pinang, dan Johor Bahru lebih tinggi daripada lokasi lain.
Ini disebabkan oleh kos kontraktor, bahan binaan, dan utiliti yang lebih mahal di bandar besar dan pinggir bandar di Malaysia.
Pengangkutan bahan binaan ke tapak pembinaan juga perlu dipertimbangkan.
3. Jenis Bahan Binaan
Pilihan jenis bahan binaan utama seperti batu bata, konkrit, keluli, kayu, dan lain-lain mempengaruhi kos keseluruhan.
Menggunakan batu bata dan konkrit untuk struktur bangunan akan meningkatkan kos secara signifikan berbanding dengan kayu atau panel logam.
Kos juga bergantung pada sama ada bahan binaan adalah tempatan atau diimport.
Bahan import seperti besi, kaca, dan lain-lain mempunyai kos yang lebih tinggi untuk diimport ke Malaysia.
4. Reka Bentuk Rumah
Reka bentuk rumah mempengaruhi kos bahan dan kerja pembinaan yang diperlukan.
Reka bentuk rumah seperti rumah 2 atau 3 tingkat, rumah banglo mewah, rumah dengan kolam renang, reka bentuk kontemporari, dan lain-lain biasanya lebih mahal kerana memerlukan bahan mahal, penglibatan arkitek, tangga, dan sistem sokongan tambahan. Pastikan anda memilih reka bentuk yang sesuai dengan bajet anda.
5. Saiz atau Keluasan Dalaman Rumah
Purata saiz minimum untuk rumah teres atau berkembar adalah 1,000 kaki persegi, manakala rumah banglo sekitar 2,000 kaki persegi.
Semakin besar saiz dalaman yang dirancang, semakin tinggi kos pembinaan.
Oleh itu, pertimbangkan dengan teliti saiz atau ruang dalaman yang diperlukan berdasarkan keperluan keluarga pada masa sekarang dan masa hadapan sebelum menetapkan saiz ideal.
6. Kemudahan Dalaman
Bilangan bilik mandi, bilik air, dapur, penghawa dingin, sistem elektrik, dan lain-lain kemudahan dalaman juga boleh meningkatkan kos.
Oleh itu, penting untuk mengoptimakan reka bentuk dalaman supaya mencukupi untuk keselesaan tanpa membazirkan kos pada kemudahan yang kurang diperlukan.
7. Kontraktor
Pemilihan kontraktor yang berpengalaman dan berkualiti adalah keputusan penting.
Walaupun yuran kontraktor mungkin agak tinggi, ia dapat membantu menjimatkan kos jangka panjang dan mengelakkan masalah ketidakpatuhan kepada spesifikasi atau kualiti rendah.
Kos Bina Rumah Atas Tanah Sendiri

Terdapat banyak faktor yang bakal mempengaruhi kos pembinaan rumah, antaranya termasuk keluasan tanah, jenis rumah, penggunaan bahan binaan, dan banyak lagi aspek yang lain.
Proses penyusunan kos pembinaan ini dapat bermula setelah pemilik rumah memiliki pengetahuan tentang reka bentuk rumah yang mereka impikan.
Kaedah pengiraan kos pembinaan rumah di atas tanah sendiri dapat dijelaskan seperti berikut:
Kos = [Luas Kawasan Berdinding (LRB) x Harga Kontraktor (RM/kaki persegi)] + [Luas Anjung Berbumbung (LAB) x 1/2 Harga Kontraktor (RM/kaki persegi)]
Dalam rumus ini, LRB mewakili luas kawasan yang akan dibina dengan dinding, dan LAB mewakili luas anjung yang akan dilengkapi dengan bumbung. Harga kontraktor per kaki persegi digunakan untuk mengira kos pembinaan tersebut.
Dengan mengambil kira faktor-faktor ini, pemilik rumah dapat menentukan anggaran kos yang diperlukan untuk mewujudkan reka bentuk rumah yang mereka idamkan.
1. Kos Buat Rumah atas Sendiri untuk 1 Bilik
Anggaran kos untuk pembinaan sebuah rumah dengan 1 bilik adalah seperti berikut:
a. Luas lantai kawasan berdinding adalah 1000 kaki persegi.
- Anggaran kadar harga kontraktor per kaki persegi = RM110
- Jumlah harga = 1000 x RM110 = RM110,000
b. Luas lantai beranda dan anjung berbumbung adalah 300 kaki persegi.
- Anggaran kadar harga kontraktor per kaki persegi = RM70
- Jumlah harga = 300 x RM70 = RM21,000
Dengan itu, jumlah anggaran kos pembinaan untuk rumah seluas 1300 kaki persegi adalah sebanyak RM131,000.
2. Kos Buat Rumah atas Tanah Sendiri untuk 3 Bilik 2 Bilik Air
Anggaran kos untuk pembinaan sebuah rumah 3 bilik dengan 2 bilik air adalah seperti berikut:
a. Luas lantai kawasan berdinding adalah 2200 kaki persegi.
- Anggaran kadar harga kontraktor per kaki persegi = RM110
- Jumlah harga = 2200 x RM110 = RM242,000
b. Luas lantai beranda dan anjung berbumbung adalah 300 kaki persegi.
- Anggaran kadar harga kontraktor per kaki persegi = RM70
- Jumlah harga = 300 x RM70 = RM21,000
Dengan itu, jumlah anggaran kos pembinaan untuk rumah dengan keluasan 2500 kaki persegi adalah sebanyak RM263,000.
3. Kos Pembinaan Rumah atas Tanah Sendiri 4 Bilik 2 Bilik Air
Anggaran kos untuk pembinaan sebuah rumah dengan 4 bilik dan 2 bilik air adalah seperti berikut:
a. Luas lantai kawasan berdinding adalah 2500 kaki persegi.
- Anggaran kadar harga kontraktor per kaki persegi = RM110
- Jumlah harga = 2500 x RM110 = RM275,000
b. Luas lantai beranda dan anjung berbumbung adalah 1000 kaki persegi.
- Anggaran kadar harga kontraktor per kaki persegi = RM70
- Jumlah harga = 1000 x RM70 = RM70,000
Dengan itu, jumlah anggaran kos pembinaan untuk rumah dengan keluasan 3500 kaki persegi adalah sebanyak RM345,000.
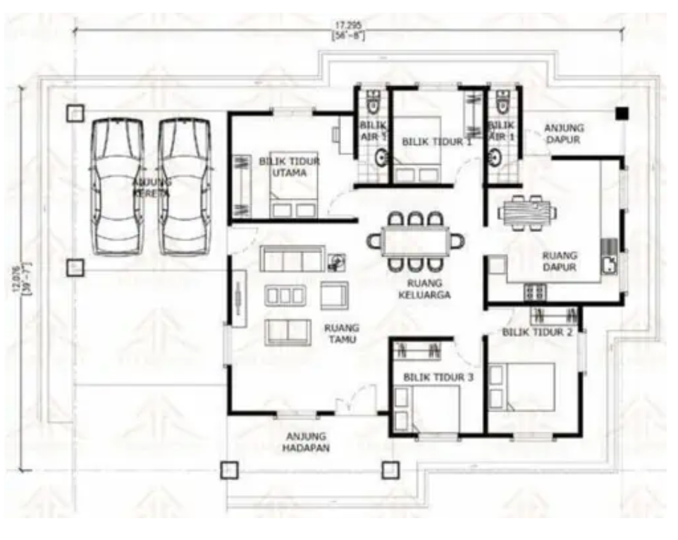
Contoh Pelan Lantai Percuma
Di bawah ini adalah contoh pelan lantai bagi rumah-rumah yang biasa digunakan apabila anda merancang untuk membina rumah anda sendiri:
1. Contoh Pelan Rumah 3 Bilik

2. Contoh Plan Rumah 4 Bilik

3. Contoh Pelan Rumah 5 Bilik


Langkah Bina Rumah Atas Tanah Sendiri

Proses pembinaan sebuah rumah, walaupun dilakukan di atas tanah sendiri, bukanlah perkara yang mudah dan ringan. Terdapat banyak kos, prosedur, dan aspek yang perlu dipertimbangkan, dan kesemuanya ini memerlukan perhatian yang teliti.
Pertama sekali, adalah penting untuk memahami bahawa pembinaan rumah melibatkan pelbagai tahap yang perlu dipatuhi.
Prosedur ini mesti dijalankan mengikut Standard Operating Procedure (SOP) yang betul untuk memastikan keselamatan, kualiti, dan keseluruhan keberhasilan projek pembinaan.
Berikut adalah langkah-langkah terperinci yang perlu diikuti jika anda bercita-cita untuk membina rumah di atas tanah sendiri, bermula dari permohonan pembinaan hingga berjaya membina sebuah rumah yang anda impikan:
1. Menetapkan Bajet
Sebelum merancang untuk membina rumah, anda perlu menetapkan bajet yang mencukupi. Bajet ini perlu dibahagikan kepada dua bahagian, iaitu bajet untuk pembinaan rumah itu sendiri dan bajet untuk perhiasan rumah.
Bajet ini bergantung pada saiz rumah, jenis bahan yang digunakan, kos kontraktor, perbelanjaan untuk hiasan dalaman, dan banyak lagi faktor.
2. Semak Status Tanah
Sebelum memulakan sebarang bentuk pembinaan, anda perlu menyemak dengan teliti status tanah milik anda.
Terdapat beberapa jenis tanah yang ada di Malaysia, termasuklah tanah bangunan, tanah pertanian, dan tanah komersial. Setiap jenis tanah mempunyai fungsi yang berbeza.
Selain itu, terdapat dua jenis geran pemilikan tanah, iaitu geran individu dan geran kongsi.
Oleh itu, anda perlu memastikan bahawa tanah anda sesuai untuk pembinaan rumah dan mempunyai geran individu sebelum memulakan sebarang pembinaan.
3. Perlantikan Arkitek
Setelah anda mengetahui status tanah anda dan mempunyai geran tanah yang sesuai, anda boleh mula membuat perlantikan seorang arkitek yang berkelayakan.
Arkitek akan membantu anda dalam merancang pelan rumah mengikut citarasa, keperluan, dan keinginan anda.
Pastikan pelan yang dihasilkan mendapat kelulusan Pihak Berkuasa Tempatan (PBT), kerana ini adalah langkah penting dalam proses pembinaan.
4. Pemilihan Kontraktor
Memilih kontraktor yang berkualiti adalah kunci untuk memastikan pembinaan rumah berjalan dengan lancar dan mengikut spesifikasi yang ditetapkan.
Pastikan kontraktor yang anda pilih adalah berdaftar dan memiliki pengalaman yang mencukupi. Penilaian kontraktor perlu dilakukan secara teliti sebelum membuat keputusan.
5. Surat Perjanjian Pemilik Rumah dan Kontraktor
Setiap butiran dan perjanjian berkaitan pembinaan rumah perlu dibuat secara bertulis dan dipersetujui oleh kedua-dua pihak, iaitu pemilik rumah dan pihak kontraktor.
Perjanjian ini adalah untuk memastikan bahawa semua kerja pembinaan dijalankan mengikut spesifikasi dan standard yang ditetapkan.
Ia juga bertujuan untuk melindungi hak dan kepentingan kedua-dua pihak serta mengelakkan sebarang pertikaian atau penyelewengan dalam proses pembinaan.
6. Modal untuk Kos Pembinaan
Modal untuk kos pembinaan rumah boleh diperolehi melalui pinjaman dari institusi perbankan atau Lembaga Perumahan dan Hartanah Selangor (LPPSA).
Modal ini digunakan untuk membiayai pembinaan rumah sehingga siap sepenuhnya. Kos pembinaan rumah bergantung pada pelbagai faktor seperti keluasan tanah, saiz rumah, jenis bahan yang digunakan, dan banyak lagi.
Oleh itu, anda perlu membuat pengiraan yang teliti dan menyediakan perancangan kewangan yang baik.
7. Penilaian Pinjaman
Sebelum mendapatkan modal untuk kos pembinaan, penilaian pinjaman perlu dilakukan berdasarkan dokumen hartanah pemilik rumah.
Penilaian ini perlu memastikan bahawa jumlah pinjaman yang dimohon adalah munasabah dan berpatutan berdasarkan nilai hartanah yang diperoleh.
8. Pembinaan Berlangsung
Proses pembinaan rumah akan memakan masa yang lama dan memerlukan pemantauan yang berterusan.
Pembayaran kepada kontraktor dan individu yang terlibat dalam projek juga perlu diuruskan secara sistematik dan berterusan untuk mengelakkan kelewatan dalam pembinaan.
9. Penyiapan Rumah
Selepas pembinaan rumah selesai berserta hiasan luaran dan dalaman, PBT akan mengeluarkan satu sijil yang dikenali sebagai Certificate of Completion and Compliance.
Sijil ini menunjukkan bahawa projek pembinaan rumah telah berjaya dilaksanakan mengikut prosedur dan standard yang ditetapkan oleh PBT.
Ini adalah tanda bahawa rumah tersebut sudah siap sepenuhnya dan boleh diduduki dengan selamat.
Seluruh proses ini memerlukan perancangan yang teliti, komitmen, dan kesabaran.
Pembinaan sebuah rumah adalah pelaburan yang besar, dan menjalani semua prosedur yang betul adalah penting untuk memastikan bahawa rumah yang dibina adalah selamat, berkualiti, dan memenuhi impian anda.
Cara Surat Permohonan Tanah Felda
Tanah yang dimiliki oleh FELDA adalah tanah pertanian yang merupakan harta milik Kerajaan Persekutuan.
Bagi individu yang berhasrat untuk membina rumah di atas tanah FELDA, mereka perlu mengemukakan permohonan pembinaan rumah di atas tanah FELDA kepada pihak FELDA.
Rajah di bawah adalah contoh Borang Permohonan Rumah untuk Tanah FELDA.
Selain itu, pendaftaran perlu dilakukan melalui laman web http://perumahan1felda.my.
Syarat-syarat kelayakan yang telah ditetapkan oleh pihak FELDA harus dipatuhi oleh pemilik tanah sebelum proses pembinaan rumah dapat dimulakan.
Sebagai tambahan, permohonan ini perlu mendapatkan kelulusan dari pihak FELDA dan Kerajaan Persekutuan sebelum sebarang pembinaan rumah boleh dilaksanakan.

LPPSA Pinjaman Bian Rumah atas Tanah Sendiri
Pembiayaan pinjaman untuk membina rumah atas tanah sendiri boleh dipohon melalui dua saluran utama, iaitu melalui pinjaman bank atau Lembaga Pembiayaan Perumahan Sektor Awam (LPPSA).
Permohonan untuk pinjaman bank atau LPPSA boleh dilakukan selepas pelan pembinaan rumah diluluskan oleh Pihak Berkuasa Tempatan (PBT).
Bagi individu yang merupakan penjawat awam, adalah digalakkan untuk mempertimbangkan pinjaman melalui LPPSA. LPPSA adalah sebuah agensi kerajaan yang bertanggungjawab menguruskan pinjaman perumahan bagi mereka yang berkhidmat dalam sektor awam.
Pinjaman untuk membina rumah atas tanah sendiri ini dicipta dengan tujuan untuk mendorong lebih ramai penjawat awam memiliki rumah sendiri.
Permohonan untuk pinjaman ini boleh dilakukan dengan mendaftar terlebih dahulu secara dalam talian melalui laman web rasmi LPPSA di https://lms.lppsa.gov.my seperti yang ditunjukkan dalam Rajah di bawah ini.
Individu yang memenuhi syarat kelayakan yang telah ditetapkan oleh LPPSA adalah layak untuk menerima pinjaman ini, menjadikannya satu peluang yang baik untuk memiliki rumah atas tanah sendiri.

Proses Bina Rumah atas Tanah Orang Jika Dapat Kebenaran Pemilik Tanah
Pembinaan rumah di atas tanah yang dimiliki oleh individu lain adalah melanggar undang-undang, dan ini tidak dibenarkan.
Namun begitu, terdapat situasi di mana pemilik tanah boleh memberikan kebenaran kepada pemilik rumah untuk membina rumah sendiri dengan syarat-syarat tertentu yang perlu dipatuhi.
Dalam situasi ini, adalah penting untuk memastikan bahawa surat akuan pemilik tanah dikeluarkan dengan persetujuan bersama kedua-dua pihak yang terlibat.
Surat akuan ini adalah dokumen rasmi yang menandakan persetujuan antara pemilik tanah dan pemilik rumah untuk menjalankan pembinaan rumah di atas tanah yang dimiliki oleh pemilik tanah yang merupakan individu lain.
Surat akuan tersebut perlu disahkan dan diletakkan setem cukai oleh Lembaga Hasil Dalam Negeri Malaysia (LHDN) dan juga perlu dicop oleh seorang Pesuruhjaya Sumpah sebagai satu langkah sah yang menunjukkan keseriusan dalam perjanjian tersebut.
Dengan mematuhi prosedur dan persetujuan yang sah, pemilik tanah dan pemilik rumah dapat menjalankan pembinaan rumah di atas tanah yang dimiliki oleh pemilik tanah yang merupakan individu lain dengan sempurna dan mengikut undang-undang yang berlaku.
Link Loan Bina Rumah & Interest Rate Pinjaman Buat Rumah Sendiri
| BANK | APPLY PINJAMAN | INTEREST RATE |
| Hong Leong Bank | https://www.hlb.com.my | 4.75 peratus |
| Ambank | https://www.ambank.com.my | 3.25 peratus |
| Maybank | https://www.maybank2u.com.my | 2.88 peratus |
| Affin Bank | https://www.affinalways.com | 3.51 peratus |
| MBSB | https://www.mbsbbank.com | 3.10 peratus |
| RHB | https://www.rhbgroup.com | 3.60 peratus |
| Public Bank | https://www.pbebank.com | 3.10 peratus |
| Bank Rakyat | https://www.bankrakyat.com.my | 3.18 peratus |
| CIMB Bank | https://www.cimb.com.my | 3.80 peratus |
| BSN | https://www.bsn.com.my | 3.10 peratus |
| Bank Islam | https://www.bankislam.com | 3.32 peratus |
Kesimpulan
Artikel dari Kosharga.my ini menjelaskan cara cagar tanah untuk bina rumah sendiri, termasuk mengajukan cagaran tanah melalui institusi perbankan, penilaian tanah, dan proses permohonan pindah milik.
Pada artikel ini juga menyediakan faktor utama yang mempengaruhi kos pembinaan rumah seperti keluasan tanah, lokasi, jenis bahan binaan, reka bentuk rumah, saiz dalaman, kemudahan dalaman, dan pemilihan kontraktor.
Selain itu, artikel ini memberikan contoh pelan lantai rumah, langkah-langkah bina rumah atas tanah sendiri, cara surat permohonan tanah FELDA, LPPSA pinjaman bina rumah atas tanah sendiri, dan proses bina rumah atas tanah orang dengan kebenaran pemilik tanah.
Laman ini juga menyediakan link kepada bank-bank dan kadar faedah pinjaman untuk membantu individu yang ingin memulakan projek pembinaan rumah.






